Miyama Hanabusa
| Type | 150 years old, built with the thatched roof equipped with a irori fireplace / No smoking in the cottage |
|---|---|
| Area | 200m2 |
| Max. No. of guests | 10 guests (negotiable for more than 10 guests) |
| Open hours | Check-in: From 3:00pm / Check-out: 10:00am in the next morning |
| Fees | Fees vary depending on the season and the number of guests. Please contact us by using the contact form. |
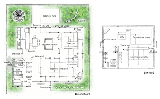
Spend a night in a cultural treasure built in Edo Japan
Hanabusa our oldest cottage was built around 150 years ago in the Edo period. This house has been reformed, but has maintained its original charm and beauty.
The cottage is very spacious and there are several rooms that you can choose to sleep in, including the thatched loft upstairs and the straw mat (Tatami) rooms downstairs. The irori or Japanese hearth is still functional and you can cook various snacks and meals over the hearth using charcoal. The cottage has WI-FI.
A full breakfast made from local ingredients will be served by our staff.
Staying here gives you a taste for what life was like in ancient Japan.

Miyama Hanabusa
Photo gallery
| Facilities | Bath, toilet, kitchen unit, microwave oven, toaster oven, rice cooker, refrigerator/freezer, tableware, cutleries, and chopsticks, a set of IH-enabled cooking devices, pots and earthen pots, electric kettle, electric pot, coffee maker, fans, air conditioners, hair dryers, washing machine needed materials, kerosene fan heaters, and kotatsu (Japanese heated table with futons) |
|---|---|
| Amenities | Dish washing liquid, sponges, dish/kitchen towels, wraps, blankets, futons, pillows, hot-water bottles, hanten jackets, tooth brushes, toothpaste, cotton, cotton swabs, hand soap, body soap, shampoo, hair conditioner, face towels, bath towels, coffee, tea, green tea, and herb tea |
Cottage specifications
- Free parking space: For six cars
- Wireless LAN: Free Wi-Fi connection available
- Security safe
- Rental bikes (500 yen per one time period / insurance and tax included, 10 bikes for adults, and 20/22-inch bikes for children are also available)
Other free services
- Rental BBQ stoves and tongs are available
(Charcoal and grills are charged for * You can carry in your own charcoals and grills)
Please enjoy a BBQ on the roof space in front of the cottage. - Wine coolers, wine glasses, drying hangers, floats, and life jackets are available. Please feel free to use these items at a party or when enjoying swimming in the river in front of the cottage.




































